
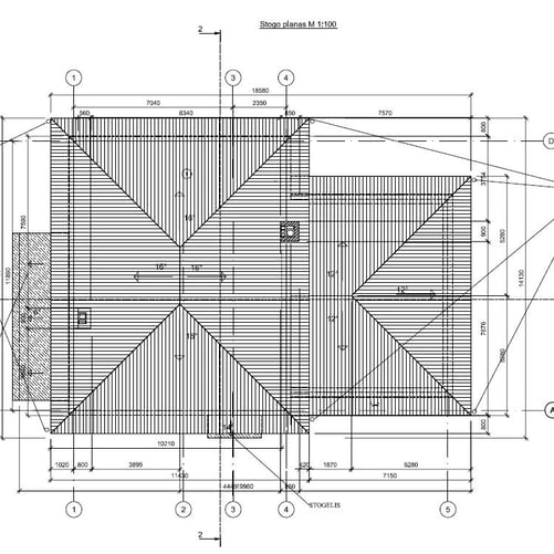
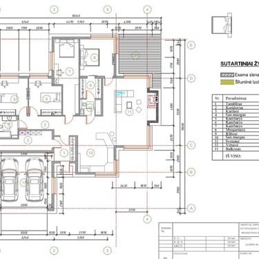
ARCHITEKTŪRA
Turite senus savo individualaus būsto ar biuro brėžinius ir reikalingi brėžiniai meistrams. Atvyksime, išsimatuosime- perbraižysime.
Braižome/perbraižome -(pastatų aukštų planus, fasadus, išklotinės ir pn.)
Pagal naujai sudaryta 3D vaizdą atliekame vizualizacijas.


















INTERJERO FOTOGRAFIJA
Dizaineris pasilieka teisę, užbaigus projektą atlikti interjero fotografavimo darbus ir nuotraukas naudoti savo profesinio darbo viešinimo tikslams ( talpinimas tik į asmeninę interneto svetainę www.ohoodizainas.lt ir į savo asmeninę paskyrą portale facebook);


