
3 PAKOPA- "DETALIZACIJA ir ĮGYVENDINIMAS"
Tai pilna techninių brėžinių ir vizualizacijų papkė, kurią viso projekto vykdymo laiką lydi mūsų patrnerių komanda. Tik atliekant autorinę objekto priežiūrą galima tikėtis tiksliausios projekto vizijos ir jos įgyvendinimo.
-Patalpų išmatavimas (arba darbas pagal esamus statybinius brėžinius);
-Patalpų- pertvarų išdėstymo planai (2-3 variantai);
-Baldų išdėstymo planai (2-3 variantai);
-3D modeliavimas;
- "Eskizinės" 3D vizualizacijos kambariui po 2-3vnt priklauso nuo kambario paskirties (3D vizualizacijos nėra keičiamos);
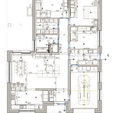
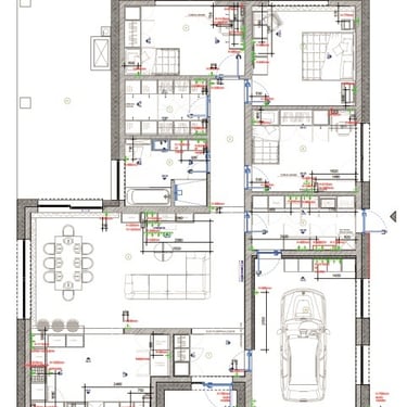
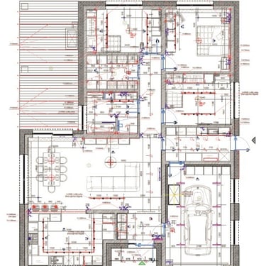
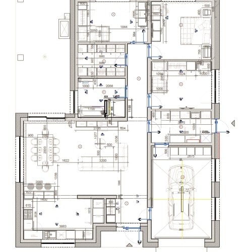
- Santechnikos prietaisų išdėstymo planas;
- Apšvietimo planas;
- Lubų planas;
-Kištukinių lizdų planas;
-Grindų dangų planas;
-Sienų apdailos planas;
-Sienų išklotinės (akcentinių interjero elementų ar dekorų);
-Plytelių išdėstymo planas;
-Rekuperacijos sistemos ir kondicionieriaus taškų pririšimas-deriname su šiuos darbus atliekančia įmone; (Tai itin svarbu. Ventiliacijos taškai įtakoją lubų planą);
-Interjero elementų parinkimas (medžiagos, šviestuvai ir pn.);
-Nestandartinių baldų projektavimas;
-Autorinė darbų priežiūra.









AUTORINIŲ DARBŲ PRIEŽIŪRA
- Autorinė projekto priežiūra.
- Važiavimas į objektą iki 1 karto per mėnesį, ne daugiau 4 kartų viso projekto rengimo metu.
- Projektus derinime su kitais projekte dalyvaujančiais atestuotais projektuotojais - darbų vadovu, šildymo, vėdinimo, apšvietimo, elektros instaliacijos, santechnikos, kompiuterijos ir kitais specialistais.
- Autorinė priežiūra apima, iškilusių klausimų vietoje sprendimas, reikiamų brėžinių pakomentavimas meistrams. Už techninį darbų išpildymą ir garantiją atsako statybų vadovas.
BALDŲ IR DEKORO ELEMENTŲ DETALIZAVIMAS
- Spalvų planas ir interjero apdailos medžiagų parinkimas;
-Parenkamos prie interejro derančios baldinės medžiagos;
- Korpusinio baldo detalizacija (virtuvės,vonios, vaiko kambario baldai, drabužinės spintos ir t.t.);
- Paruošiami techninė brėžinių specifikacija;
- Minkštųjų baldų bei smulkiųjų baldų (kėdės, valgomieji stalai, kavos staliukai, rašomieji stalai,naktiniai staliukai,miegamojo lovos, svečių ar darbo kambario) parinkimas;
- Interjere naudojamų minkštųjų baldų, kilimų, užuolaidų ar roletų, šviestuvų, veidrodžių parinkimas (iki 2 variantų), pateikimas siunčiant užsakovui interneto nuorodas.
- Pateikiamas korpusinių baldų aprašas su naudojama projekte furnitūra (jeigu projekto eigoje suderiname su klientu medžiagas- kitu atveju tai tik rekomenduojamos medžiagos);
- Pateikiame korpusinių baldų komercinį pasiūlymą (jeigu ši paslauga reikalinga);
- Pagaminame, atvežame ir sumontuojame baldus (jeigu ši paslauga reikalinga).
IŠRENKAME
- Santechnikos prietaisus;
-Kištukinius lizdus ir jungtukus;
- Šviestuvus;
- Grindų dangas;
- Sienų dangas (tapetai, bruseliai, dekoratyvinis tinkas ir pn.) ar dažų spalvas;
- Plyteles ir glaisto spalvas;
- Grindjuostės ir apvadus;
- Ventiliacijos apdailą;
- Durų modelį;
INTERJERO FOTOGRAFIJA
Dizaineris pasilieka teisę, užbaigus projektą atlikti interjero fotografavimo darbus ir nuotraukas naudoti savo profesinio darbo viešinimo tikslams ( talpinimas tik į asmeninę interneto svetainę www.ohoodizainas.lt ir į savo asmeninę paskyrą portale facebook).


